Select Page

Newbury Cross B

This is a model home showing some or all of the builder’s upgrades/options. The “Base Price” of this home is $438,150 including lot. The “As Shown” price (excluding furnishings) is $462,655 including lot. This home may or may not be for sale at this address but may still be built on another lot.

Address

3536 Emory Green Street
Knoxville, Tennessee, 37931

Emory Green

Directions

Go north on Pellissippi Parkway to Hardin Valley Rd exit, turn right on Hardin Valley Rd. to left on Westcott Blvd. Continue for .5 miles straight onto Karns Valley Dr. Continue 2 miles on Karns Valley Dr. to left on W. Emory Rd. Continue left on W. Emory to left turn on Emory Green Street. Map Directions

Building Company

Ball Homes, LLC (865) 693-3232 Visit Builder Site

About

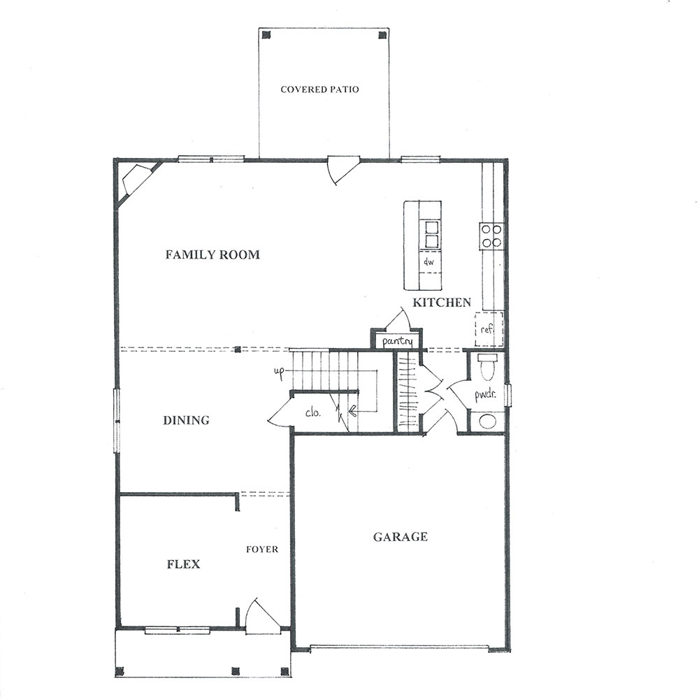
  • 2,775 Square Feet

  • 376 Square Foot Garage

  • 4 Bedrooms

  • 2.5 Bathrooms

Features

  • Two-story home with up to five bedrooms possible

  • Kitchen with large pantry, island layout, breakfast area

  • First floor flex area available as study option

  • Dining room defined by column

  • Open family room connects to kitchen and dining room

  • Direct vent corner fireplace in family room

  • Large primary bedroom with vaulted ceiling, spacious closet

  • Primary bath shown with separate shower and garden tub, picture window, dual vanity

  • Covered patio option shown

  • Loft can also be configured as fifth bedroom

Price

$462,655.00

HBAGK Parade of Homes™ 221 Clark St. NW,
Knoxville, TN 37921

© 2026 HBA of Greater Knoxville.
All rights reserved.